Decision expected on 37 new almshouses amid local objections
By Sam Greenway - Local Democracy Reporter 6th Oct 2025
By Sam Greenway - Local Democracy Reporter 6th Oct 2025

A final decision is to be made by council planners on the building of new village alms-houses opposed by dozens of residents.
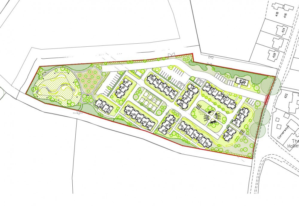
Applicant Berkswell Charities applied to build 37 new homes on land west of Hob Lane, Burton Green, in January.
The application is for the homes, vehicle and pedestrian access onto Cromwell Lane as well as parking, landscaping and open space.
The application said: "Almshouses are the oldest form of social housing in the UK, providing independent living in a safe, community-led environment.
"Berkswell Charities are a long-established charitable organisation being legally recognised in 1589.
"One of several objectives of Berkswell Charities is the relief of poverty among the inhabitants within the parish of Berkswell and the surrounding area.
"The proposed development comprises appropriate development within the green belt.
"The significant need for affordable housing both at the borough and local level has been demonstrated."
But in a public consultation 73 neighbours submitted objections which included:
- Congestion
- Lack of general infrastructure
- Development should not be building on green belt
- The village cannot support such large scale development and will lose its identity
The scheme is to go before Solihull Metropolitan Borough Council's planning committee with officers recommending the scheme be approved, subject to conditions.
A report said: "The overall planning balance is clearly in favour for the proposed development.
"Officers have taken into consideration all the representations made in respect to the proposal.
"In view of the matters set out above however, they do not alter the overall conclusion."
The planning committee meeting, which is open to the public, is being held at the Civic Suite from 6pm on Wednesday, October 8.
CHECK OUT OUR Jobs Section HERE!
kenilworth vacancies updated hourly!
Click here to see more: kenilworth jobs
Share: